경남 산청에서 혼자 지내시는 어머니를 위해 이번에 한옥을 한 채 새로 지어 지내실 수 있게 해드리고 싶어 가족들과 한옥 시공에 관해 상의 중에 있는데 한옥 건축 비용이 만만치 않네요.
이번에 여러분께 전해드릴 정보는 한옥 설계 도면을 공유하고 한옥 짓기에 대해 간단하게 말씀드려볼까 합니다.
언젠가는 저도 혼자 한옥 집짓기에 도전해보고 싶네요.
평수는 아무래도 혼자 지내고 계시니 25평 한옥으로 결정했습니다.
독거노인이 큰 집에 덩그러니 지내셔봐야 외로움만 더 커질테니 크지는 않지만 그래도 생활하기 불편하지 않은 한옥이면 좋겠다는 생각이 듭니다.

25평이면 82.644628 제곱미터(m²)이니 일단 부지는 넉넉한 듯 싶습니다.
건축 구조형태는 경량형의 목구조로 단층이며 현관, 거실, 주방, 방 2개, 화장실 1개 외에 집에 정리해둘 물건이 많아 다용도실을 추가로 계획하고 있습니다.

입면계획에 대해 말씀드리겠습니다.
예전에는 시멘트 사이딩과 아스팔트 슁글을 많이 사용했다고 하는데 제 타입은 아닌 것 같습니다.
저는 개인적으로 스터코 플레스와 파벽돌을 함께 쓰는 게 조금 멋스럽게 느껴지고 구조적으로 외단열에도 효과적이라고 하니 이 방식을 선택해볼까 합니다.
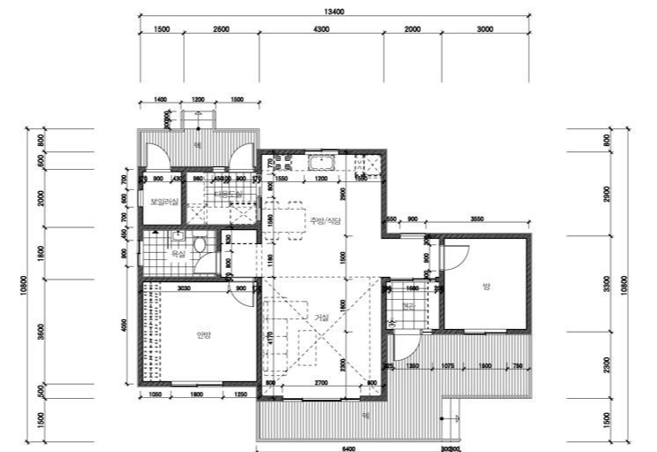
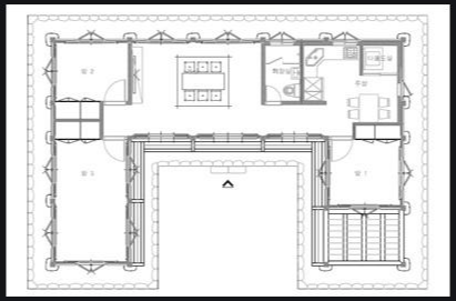
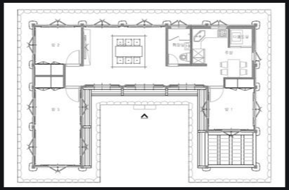
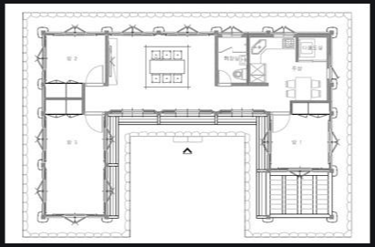
평면계획에 대해 말씀드리겠습니다.

한옥 뿐만 아니라 건축물의 평면계획에서 중요하게 고려할 사항은 동선 부분입니다.
특히 연로하신 어른들이 생활할 공간이라면 동선이 길게 설계되어서는 안됩니다.
최대한 짧고 간결하게 필요한 것들부터 동선을 구성하여 다리가 불편하신 어르신들이 편하게 생활할 수 있는 공간으로 설계될 필요가 있습니다.

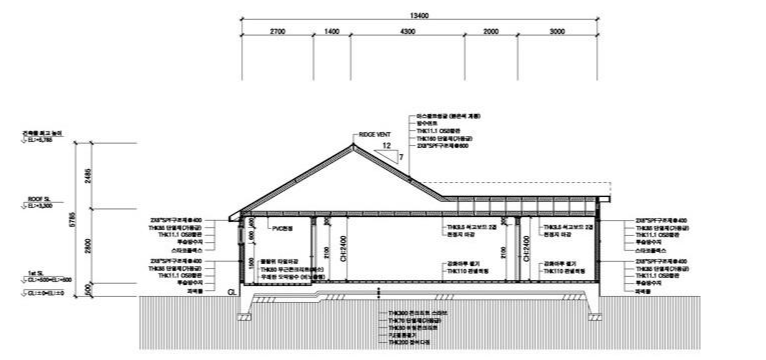
설계도면의 단면도를 보여드리겠습니다.
아마 설계 도면에 대해 기본적인 지식을 가지고 있는 분들은 단면도를 통해 골조 및 기본 구조에 대한 보다 깊은 이해가 가능하리라 생각합니다.
특히 한옥을 짓고자 하는 사업주는 실제 시공에 들어가기 전에 단면도를 정확하게 확인할 필요가 있습니다.
단면도에 드러나지 않은 시공방법으로 그저 관습대로 시공하거나 시공비용을 낮추기 위해 간혹 일부 자재를 축소 및 생략하는 경우가 있다고 합니다.

단면도 뿐만 아니라 배치도의 확인도 중요합니다.
배치도란 한옥을 짓기 위한 부지에 건축물이 어떻게 배치되는가 하는 중요한 문제이기 때문에 건축주에게는 가장 중요한 부분입니다.
배치도가 잘못되어 조망이 마음에 안 들거나 할수도 있기 때문에 설계초기 단계에서 잘못된 설계로 추가 비용이 들지 않도록 꼼꼼하게 확인할 필요가 있습니다.
참고로 한옥 집짓기 순서에 대해서도 말씀드려보겠습니다.
https://hellotalk.tistory.com/22
우리의 전통 한옥 집짓기 순서 및 방법
한옥집에 대한 관심이 점점 많아지고 있고 내손으로 한옥짓기가 유행인 것 같아 전체 순서 및 과정을 정리해보았습니다. 한옥을 포함해서 모든 건설구조물이 완성되는 과정은 이론적으로 기획
hellotalk.tistory.com
한옥 시공도 어려운 부분이 많고 한옥 건축 비용도 싸지는 않지만 예쁜 한옥 한채 어머니께 선물해드리고 싶은 생각은 변함이 없네요.
즐거운 한옥 생활 하시기 바랍니다.
아파트에서 생활하시던 분들은 한옥 생활이 조금 불편할 수 있겠지만 말이죠.
'k-culture > k-잡학다식' 카테고리의 다른 글
| 외국인 대화 어플 헬로우톡 hellotalk 외국인과 대화하기 (0) | 2022.01.18 |
|---|---|
| 로보아르테 롸버트 치킨 창업 (0) | 2021.07.07 |
| 이마트 휴무일 2021년 (0) | 2021.01.01 |
| 공무원 직장인 코로나 확진자 걸리면 징계 (0) | 2020.12.27 |
| 청주 코로나 확진자 동선 및 경로 (feat.청주시청 홈페이지) (0) | 2020.12.25 |
